back to search results

£129,500

Plot in Canning, Buenos Aires, Argentina
Land: 3180 m²

Features

  • Exclusive development
  • Polo lot
  • 3180 square metres
  • Price - £ 129,500.00
  • For house construction
  • 18 hole golf course
  • Polo
  • Equestrian sport
  • Tudor Manor house
  • Near Buenos Aires City & airport

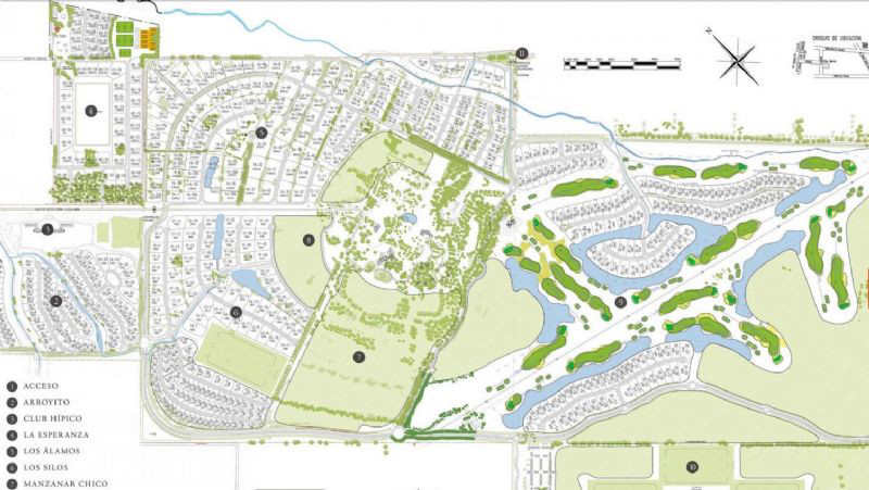
Polo Lot for Sale at The Prestigious 'Estancia Villa Maria' in Buenos Aires .

This Country Club development is situated close to Canning . It is approximately 45 minutes drive from Buenos Aires City centre .
Similarly , around a 20 minute drive from Ezeiza International Airport . This development is of much interest to International investors . It is a high end resort . The 1G.4 polo lot measuring 3180 square metres / 0.785 acre , is very well positioned in the ' Los Silos ' polo field area and is ready for house construction , with the appropriate planning consents . The electric , WiFi , water and sewerage services are in place . Many house builds have already been completed and numerous further home constructions are underway within the development . There are in the region of nearly 50 houses either complete , still under construction and early planning stage in readiness to start building . Families already resident at the Estancia taking full advantage of its tranquility and easy living . There are excellent sporting facilities available for the residents , including - Polo , 18 hole golf course , football pitch , tennis courts and an Equestrian centre with clubhouse with other horse riding options . A Tudor style Manor house hotel is centrally placed within the tree lined grounds , which also has further facilities available . This Estancia is generally regarded as one of the finest quality developments of its type , south of Buenos Aires . What better place to plan to move to , whilst we all had to deal with the 2020 world virus problem! This has extended into 2022 and probably beyond for some years , who knows the answer ? Just think how nice it would to be able to construct your own luxury family home within this Estancia , perhaps work from home to enjoy and profit from something others are unable to do so in such surroundings . Currently , house construction costs are extremely interesting , great value and competitive . The architecture and construction qualities are very strictly controlled and observed to ensure the Estancia is not compromised in any way . Times are changing , the new norm for the work situation will be from your own home and not the office for the fortunate ones . Take advantage of this opportunity for change , the timing is perfect right now . The asking price of £ 129,500.00 does have some flexibility . The owner is from the UK but living in Buenos Aires City . There are a further two lots for sale in alternative areas within the Estancia . One of 2026 SM in the Equestrian sector and the other in the solely residential part Los Alamos , measuring 2550 SM . Both lots are superbly situated within the very best areas of the Estancia Villa Maria .




Contact Seller