back to search results

SOLD

Detached House in Mauzac-et-Grand-Castang, Nouvelle-Aquitaine, France
2 | 1 | Property: 82 m² | Land: 0.3 acres

Features

  • River View
  • Less than 30 minutes from the Airport
  • Original Perigord Stone House
  • Two Train Stations within a 10 minute drive
  • 3/4 of an acre
  • Outbuildings
  • Walk to Amenities

River House, Original 200 year old Perigord

A Rare Renovation Opportunity
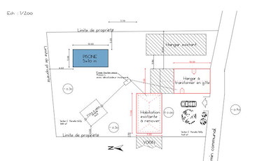
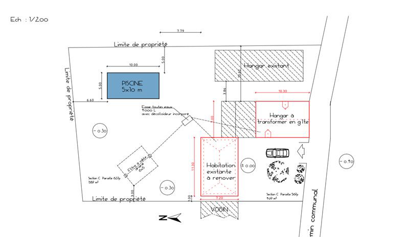
River House is a 200 year old original Perigord House with adjoining Stone Barn, Séchoir Barn and piggeries.

The house fronts onto the Dordogne river providing uninterrupted views and private river bank access.

This beautiful house is a walk from bar, restaurant, post office, boat club and church in Mauzac-et-Grand-Castang village situated on the river and offering beautiful views across to Trémolat.

The house is situated on a highly desirable river front road between the town of Lalinde and Mauzac-et-Grand-Castang
There are two train stations within a 10 minute drive from the house connecting you directly to Bordeaux, Bergerac, Sarlat.

Bergerac airport is less than 30 minutes away on a fairly direct main road.

At present the house has two bedrooms, one bathroom, living, kitchen all located on the first floor of the house. We have architectural plans drafted to renovate and increase the property to a 3 / 4 bed with two bathrooms. The stone barn & Séchoir has the potential to be converted into a gite.
There are neighbours alongside but privacy can be achieved by creating a courtyard to the front in the same Perigord stone as the house and stone barn and putting some fencing up at side. There are several examples of renovations on the road where privacy has been achieved. Property on the road once renovation can reach up to €800K depending on finish and spec.
The stone barn roof will need work but the roof on the house is perfect condition. As the property is habitable it can be enjoyed and any renovation could take place in stages.

Unfortunately due to work we are now based in California and cannot complete our dream of reawakening this Sleeping Beauty of a property.

Floorplans

Contact Seller

This property has now been sold.