€130,000
Land in Kaspakas, North Agean, Greece
                Land: 1285 m²
            
                Features
- Sea View
- Near the Beach
- Near the Island's Centre
- Permit to build
- Electricity & Water supply
- Very easily accessible
Sale, Land Plot 1285 m², Lemnos, Aegean, GR
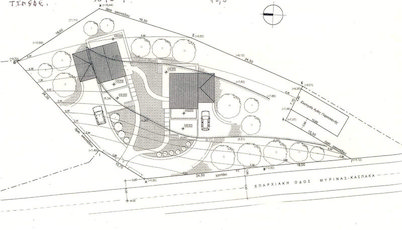
Plot of land of 1. 285 sq. m. or 13831. 6 sq. ft. for sale.On Myrina-Kaspakas Prov. Road.
Sea View of the Aegean.
Permit to build granted. Easily renewable.
Builds a total of 1614. 5 sq. ft.
Architectural suggestion for design of 2 separate buildings is visualised in the attached pictures.
Water & Electricity supply granted.
Distance from nearest beach (Agios Ioannis): 1,6 miles // 4-minute drive
Distance from Myrina centre (capital of the island): 3 miles // 8 - minute drive
Distance from Port of Myrina: 3 , 9 miles // 11 - minute drive
Distance from Lemnos Airport: 10 , 3 miles // 22 - minute drive
 
                         
                         
                         
                         
                         
                        