back to search results

SOLD

Character Property in Plaisance, Occitanie, France
3 | 2 | Property: 250 m² | Land: 1 acres

Features

  • Spacious Detached Family Home
  • Picturesque Rural Location in National Park
  • Fully, Sympathetically Restored Throughout
  • Panoramic Balcony Views
  • Large Modern Fitted Kitchen
  • 3 Double Bedrooms
  • Feature Lounge with New Wood burning Stove
  • Games room
  • 1 Bathroom, 2 Shower rooms and 3 Seperate Toilets
  • Double Glazed Throughout

Restored, Detached Farm House

A LOVINGLY RESTORED & SPACIOUS DETACHED FAMILY HOME in a picturesque rural location, ideal for exploring the beautiful National Park in which it is located. The house is set in the department of Aveyron, within the Midi-Pyrénées Region in the South of France.

‘La Bastinde’ is a stunning French country farm house in an elevated and commanding position, offering panoramic views over a lush green valley.

The house has been sympathetically restored to an impeccable standard and would serve as a wonderful family home or vacation rental with opportunity to easily configure a self-contained annexe.

This three-storey farmhouse boasts generously proportioned accommodation of just under 250 sq.m., and rests on an independent plot with generous gardens.

The top floor comprises two very large double bedrooms, a third double bedroom, a separate wc room, a shower room and a sizeable hallway with skylights and original exposed beams and stonework.
The middle floor comprises an entrance porch, a large modern fitted kitchen (which includes underfloor heating) comprising a central island and dining area. The kitchen opens onto a large balcony through double French doors. The middle floor also has a large lounge with 10Kw multi-fuel fire, a separate wc room, a stylish bathroom with roll-top bath and a generous hallway.
The ground floor comprises three large rooms with potential for a fourth bedroom (with garden access through double French doors), a second dining room and a games room with full size table tennis table. In addition, there is a fully-plumbed utility room and a separate room with wc that is plumbed ready for a 2nd shower. This layout is flexible in its construction and could be used as a self-contained annex with its own entrance and access to the gardens.
Key Improvements:
The house is fully double glazed throughout with modern upvc windows, in keeping with the local environment
The roof has been completely insulated, re-slated and the chimney has been rebuilt
Internal stone walls have been eithe re-plastered or retained as feature walls.
All floors, internal walls and stairs are new, as are the finishes
The tiled kitchen/dining area has underfloor heating
The house has all new plumbing and all new certified electrics, it is also plumbed ready for a modern central heating
The house is connected for telephone and WiFi
The house has a new septic tank system designed and approved to modern environmental regulations

Whilst the house has been completely renovated, the original style and feel of the house has been preserved including historic features.
There are gardens to the rear and side of the house as well as a large grassy meadow extending from the side garden (purchased with potential for installing a pool).
The house rests beside a quiet country lane with multiple local facilities only 5 minutes away, including:
Shop/Bar/Restaurant run by a popular, welcoming local couple (with fluent English)
Communal leisure facilities including outdoor pool and tennis courts
A beautiful hotel with an excellent restaurant, heated pool and cycle hire, including electric bikes (again with fluent English)
Historic church and grounds
River suitable for paddling, fishing etc.
Local fetes, fireworks, shows, and night food markets adjacent to the Chateau in nearby Coupiac
The area is ideal for walking/rambling and is an area used on a number of occasions for the Tour de France
Just a short drive away are some of the region’s most beautiful cities, villages and attractions including:
Brousse Le Chateau (voted one of the most beautiful villages in France)
Ambialet (stunning village with summer evening music and lights spectacular)
Albi (historic red-brick city with winding streets lined with boutique shops and restaurants as well as a 13th century Gothic Cathedral)
The Tarn river with incredible kayaking, picknicking and barbequeing facilities, restaurants and bars.
1.5hr drive from the Mediterranean coast
4hr drive to Spain (5hrs to Barcelona)


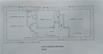
HOUSE LAYOUT


Top Floor

Bedroom 1 - 5.30m x 4.95m
Double glazed window to front and rear, double glazed roof window, radiator, laminated floor.

Bedroom 2 - 3.50m x 3.20m
Double glazed window to front, radiator, laminated floor.

Bedroom 3 – 5.75m x 4.20m )
Double glazed window to front and rear, double glazed roof window, radiator, laminated floor.

Shower Room – 2.5m x 1.67m
Wash hand basin, shower cubicle, tiled floor, radiator, laminate flooring.

Hallway – 6.0m x 1.2m
Double glazed window to rear, double glazed roof window, radiator, laminated floor.

WC room
Wash hand basin, WC, radiator, laminated floor

----------------------------------------






Middle Floor


Lounge - 5.20m x 4.95m
Double glazed windows with window seats, panoramic views to side and rear, 10kw multi-fuel burner, exposed stonework, preserved well feature, radiator, laminated floor, TV point.

Entrance Porch – 2.37m x 1.15m
Double glazed entrance door to front, tiled floor, stairs to top floor.

Hallway – 5.2m x 2.25m
Double glazed window with panoramic view to rear, exposed stonework, radiator, laminated floor, stairs to lower floor.

Kitchen/Dining Room – 5.72m x 5.60m
Well fitted kitchen with central island including both floor and wall units, Quartz work surfaces, inset sink and drainer, built in oven and hob, dishwasher, fridge/freezer, tiled floor with underfloor heating, Double french windows leading to large balcony (6.80m x 1.70m), double glazed window to front, exposed stonework, radiator.

Bathroom – 3.36m x 2.85m
Roll-top Bath, 2 ‘built in’ wash hand basins, towel radiator, tiled floor, exposed stonework with original feature shelving, built in cupboard,

WC room
Wash hand basin, WC, radiator, laminated floor.

Balcony – 6.8m x 1.7m
Accessed from the Kitchen/Dining area, tiled, Metal balcony railing (galvanised and powder coated for extensive life), stunning views, external powerpoint.

----------------------------------------

Lower Floor


Potential Bedroom – 4.75m x 4.74m
Double French windows leading to garden area, double glazed window to rear, feature chimney area, radiator, tiled floor, exposed stonework, preserved well feature, under stairs cupboard.

2nd Living Room – 4.75m x 3.8m
Double glazed window to rear, exposed stonework, radiator, tiled floor, stairs to middle floor.

Games Room – 5.75m x 2.9m
Double glazed entrance door to rear, double glazed windows to rear and side, radiator, tiled floor.

Utility Room – 5.75m x 2.9m
Fitted sink unit, hot water cylinder, radiator, tiled floor.

WC/Shower room
Double glazed window to side, wash hand basin, WC, radiator, tiled floor’

----------------------------------------





Outside

Rear Garden 
Enclosed garden with raised beds, flagged patio area, log store, outside water tap, stunning countryside views across the valley.

Side Garden

Enclosed garden with raised barbecue area, walnut trees, original outdoor bread oven, stunning countryside views across the valley.

Field Area
Located beyond and accessed through the side garden. Includes grassed field, small wooded area, original water source.
 

SERVICES CONNECTED  Water/Electricity/WiFi

Floorplans

Contact Seller

This property has now been sold.