back to search results

€179,950

Character Property in Camporgiano, Tuscany, Italy
2 | 1 | Property: 99 m² | Land: 0.6 acres

Features

  • South facing
  • Stone built
  • Cool in summer cosy in winter.
  • Minimal maintenance
  • Central heating by Gpl
  • Double glazed
  • Views of Apuane mountains

Stone house in peaceful setting with garden

Our house was built over 200 years ago in typical
Tuscan style .Originally owned by the local chestnut mill owner and sited next to an ancient stone bridge where the water wheel worked.
The stream Edron trickles gently past and everywhere there are trees and peace.
Ideal location for those seeking quiet and cycling or walking or catching sun in the south facing front garden.
Village shops few kilometres away all other facilities in Castelnuovo di Garfagnana which is 15 minute drive.
No parking oroblems just leave your car at foot of bridge.

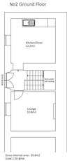
Floorplans

Contact Seller