back to search results

€327,000

Commercial Property in Las Palmas, Canary Islands, Spain
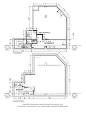
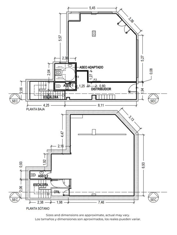
3 | Property: 176 m² | Year built: 2002

Features

  • air conditioning
  • 3 bathrooms

Commercial property in Las Palmas

Beautiful and bright corner property with large shop windows and basement in the up and coming Guanarteme area at las Canteras Beach.

This commercial property has been renovated to a high level of standard in 2021. The renovation complies with the rules for the current activity license including yoga and other wellness classes/events (Centro de Actividades Dirigidas). It is a great opportunity for a new owner of the premises to get up and running very quickly, either starting your own business or renting the space out for any business activity within the license regulations.

It is excellent for many other types of activities too and it is disability adapted. In addition to the strategic location and functional characteristics, the location offers excellent visibility and accessibility. With a spacious and open plan design, this location offers a versatile space adaptable to your business needs.

Size 176 m2 on two floors: Ground floor 81 m2 (76m2 usable) and Basement 94 m2 (83m2 usable).

Large double glazed windows covering two streets for maximum shop window display.

Main entrance with double doors from the corner and side entrance to the hallway.

One toilet and one disability approved bathroom with toilet and shower on ground floor.

Large basement (usage for storage / destinado a almacén), one toilet.

Air-conditioning on both floors, wifi enabled.

Wifi enabled Philips shop floor lights including remote configuration.

Electronic code locks.

Community fee 41 € month
IBI tax 565 € year.

Less than 5 minutes walk to las Canteras Beach and 750 meters to Las Arenas shopping center.

La Cicer is the surfer's paradise on Playa de las Canteras, the wonderful city beach in the capital of Gran Canaria. The climate is very pleasant throughout the year. There are numerous trendy restaurants and shops in this vibrant area, with lots of creativity, sports and activities for residents, digital nomads and tourists. Easy access to public transport and bicycle lanes.

Information: expenses and taxes not included. The data presented is merely indicative, and may be subject to involuntary errors or omissions.

Floorplans

Contact Seller