back to search results

€325,000 UNDER OFFER

Detached House in Loudun, Nouvelle-Aquitaine, France
5 | 2 | Property: 215 m² | Land: 1569 m²

Features

  • Individually designed house
  • Spacious, flexible accommodation
  • South facing terrace
  • Large garage/basement
  • DPE B
  • Walking distance to all town facilities
  • Easy access to country walks
  • Better than it looks in the photos!!

Unique house in a great location

This is a fabulous house - spacious and comfortable with enough character to make it interesting and slightly unusual. It has a beautiful garden and is in a great location, giving you the French lifestyle but within walking distance of all the town’s facilities so no need to get into the car every time you want to pop to the shops or go out for a meal.

The individually designed house is above, and set back from, the quiet road behind large gates and is surrounded on all sides by the lovely garden, which contains a variety of flowers, shrubs and trees.

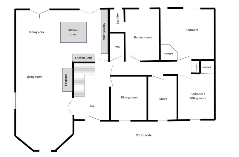
The heart of the house is a spacious, open plan kitchen, dining and living room. The modern kitchen has a central island with plenty of worktops and storage. There is an informal dining area which overlooks the terrace and garden. In the living area there is a large stone fireplace with a wood burner for cosy winter evenings. Windows overlook the front and side garden, and double doors lead from the kitchen and dining areas out onto the terrace and south-facing rear garden.

Also on the ground floor is a separate dining room, study/office, 2 double bedrooms (which could alternatively be used as further living areas), a shower room with utility area, and a cloakroom.

Upstairs there are 3 more bedrooms (one of which contains a snug/dressing room) and there is also a bright, modern bathroom. There are 2 attic spaces on the same level (so no need for ladders) which provide plenty of storage.

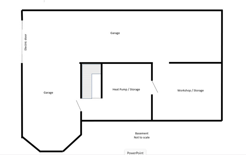
Underneath the house is a full-sized basement consisting of a garage for 3 cars, a large workshop for hobbies or storage, and an area housing the heat pump.

The house is in the lovely small town of Loudun, which has a population of just under 7,000 and is listed as one of “Les 100 plus beaux détours de France” 2024 by Michelin. It has several bars, cafés, supermarkets, shops and restaurants. There is an excellent boulangerie only 300m away from the house which sells the best croissants! The town benefits from schools, colleges, doctors, dentists, a cinema, library and a theatre. On the sporting side there is a gym, swimming pool and horse-riding, as well as various clubs (rugby, tennis, badminton, walking, cycling, gymnastics etc..) There are endless country tracks nearby for walking in the beautiful Vienne countryside.

Loudun is situated to the north of Poitiers, and just south of the Loire Valley with all its vineyards and châteaux, so there are plenty of things to see and do in the area.

With this house you get the best of both worlds - town living and close to the countryside; character but with modern comfort; near to facilities whilst being quiet and private. This is a fabulous house and the photos really don't do it justice!

Don't hesitate to make contact if you have any questions.

Floorplans

Contact Seller