back to search results

SOLD

Villa in Anna, Valencia, Spain
4 | 2 | Property: 304 m² | Land: 3691 m²

Features

  • Private, Not overlooked
  • Tranquil
  • Panoramic views of farm land orange groves and mountains
  • Green credentials (A)
  • Large private tiled, filtered swimming pool
  • Whole property completely renovated
  • Large selection of fruit trees
  • Easy access to Valencia or Alicante Airport
  • Xativa (20 minutes) main line railway station
  • Coast 40 minutes drive

Stunning Rural villa with large pool

Beautiful, rustic, refurbished 4 bed villa with full geothermal central heating and air conditioning. The exterior contains a large pool with panoramic countryside views.
Two covered terraces perfect for al fresco dining. Double garage, laundry room, paella kitchen, workshop and amazing views of the Caroig valley.


Due to its position the villa has uninterrupted views of Anna, the Caroig valley and Caroche mountain which is, at 1,126 meters, the highest point in the province of Valencia.
This fully refurbished property consists of four double bedrooms, two bathrooms, L shaped lounge/diner and kitchen.
The exterior contains a swimming pool, two covered terraces, large double garage, car port, laundry room, paella kitchen, toilet and shower room, workshop, swimming pool pump room, mature shrubs, landscaped gardens all on one level and ideal for wheelchair access. The property benefits from geothermal central heating, solar powered hot water, automated garden irrigation systems, mains electricity, wireless broadband and a Freesat TV dish. ( Landline telephone available but not connected) The building plot is fully fenced and pet friendly. Access to the property is via a remote operated entrance gate.
There is ample room to park several cars, boats or caravans.


The villa sits on the lower third of the parcel of terraced land and this area is fully fenced.
The front elevation to the villa is a covered terrace, 33 sq meters, enclosed with balustrading. Fitted with power, ceiling fan and light.

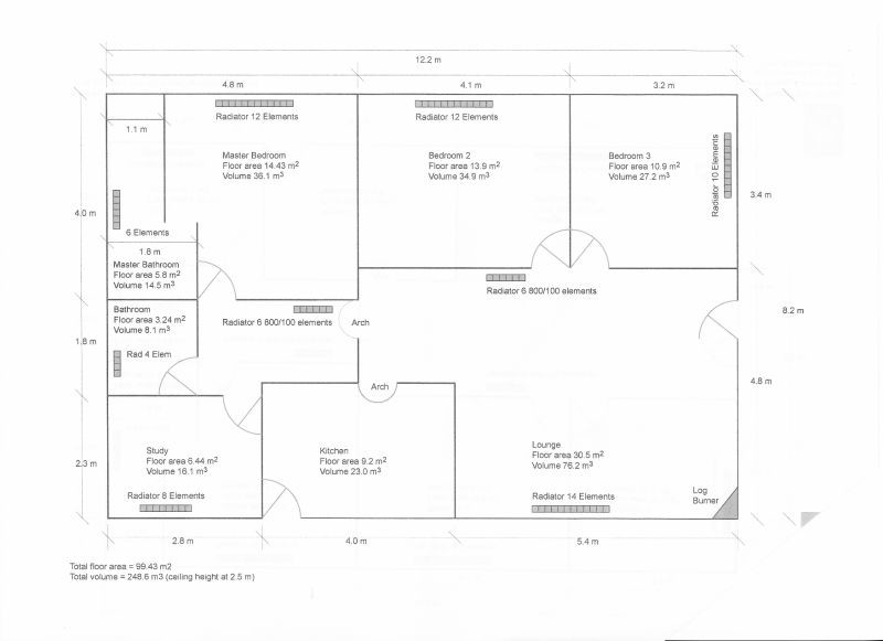
Lounge, 4.7 x 7.4
Entrance via front door into L shaped lounge / diner. The lounge is fitted with a wall mounted air conditioning converter, numerous mains electricity sockets, TV point, two heating radiators ceiling fan/light. There is a corner feature biomass pellet stove. Windows on two aspects.

Kitchen, 2.7 x 4.0
A fully fitted modern kitchen with built in Neff double oven, ceramic hob, extractor fan, integrated AEG dishwasher, marble worktops, ample sockets, masses of storage, window to side elevation and door to rear garden and pool.

Master Bedroom, 4.0 x 4.3
Fitted air conditioning converter, heating radiator, ceiling fan/light, fitted bed side lights two windows to side elevation, door to en-suite. Bedroom suite of furniture to remain.

En-Suite, 2.0 x 3.4
Fully tiled, containing, bidet, low level WC, hand basin, walk in shower with thermostatic water control, extractor fan, heating radiator, storage cupboard, window to rear elevation.

Bedroom 2, 3.3 x 4.1
Heating radiator, ceiling fan, window to side aspect. Bedroom suite of furniture to remain.

Bedroom 3, 3.2 x 3.3
Heating radiator, ceiling fan, window to front terrace. Bedroom suite of furniture to remain.

Bedroom 4, 2.7 x 2.8
Currently used as study, contains heating radiator and window to side elevation. Some office furniture to remain.

Main toilet/shower Room, 2.0 x 2.4
Fully tiled, containing bidet, low level WC, hand basin, walk in shower with thermostatic water control, extractor fan, heating radiator, storage cupboard and window to rear elevation.

The whole villa has ceramic tiled floors, all windows and external doors are thermally efficient and double glazed. All windows are fitted with roller shutters and fly screens.

Carport, 3.1 x 5.8
Open on two sides with power and light, ceramic tiled floor and entrance to garage.

Garage, 4.7 x 9.7.
Entrance by remote operated electric panel door, floor fully tiled, power and light with window and side door. The garage houses the geothermal heat pump and holding tank for central heating water.

Laundry Room, 2.0 x 3.1
Fitted with double sink, wall and floor mounted storage units, tiled work tops, various power points and plumbing for washing machine and tumble dryer. Window to side elevation. The laundry room houses the solar water immersion cylinder and plumbing plus a wall mounted gas boiler to back up the solar should it be required during the winter months.

Pool Changing Room, 1.8 x 1.9
Fully tiled, containing shower with thermostatic control valve, WC and hand basin.

Paella Kitchen, 3.4 x 5.1
Tiled floor and worktop to one end fitted with chimney for a BBQ, power and light.

Swimming Pool, 10.0 x 5.0
Fully tiled with roman steps to one end. Deep end 2.7 meters, fitted with stainless steel pool ladder. Two LED lighting units and cleaning suction point.

Swimming Pool Pump Room, 1.6 x 4.1
Containing the pump, plumbing and filters. Fitted with automatic timing device for cleaning purposes. Storage for pool equipment and chemicals.

Rear covered Terrace 36 sq meters
Tiled floor, wrap around seating, fitted with ceiling fan/light power and wall light fittings.

Workshop, 3.9 x 4.1
Fitted with bench and some shelving, power and light.

The remaining two thirds of the plot are planted with orange and olive trees with irrigation systems fitted. Other fruit trees such as pomegranate, nispero, persimmon, peach, apricot, cherry and grape are planted throughout the plot.


The villa is situated in the green and fertile foothills of the Macizo Del Caroig valley near the historic village of Anna which is 197 meters above sea level and has a population of approx. 3000, Anna has become a popular tourist area due to the local Albufera (a natural lake fed by springs) and the recently refurbished Moorish Palace. The village provides all amenities such as supermarkets, garage, health center, dentist, restaurants and bars etc.
See local website -
https://www.tripadvisor.com/Tourism-g2589810-Anna_Province_of_Valencia_Valencian_Country-Vacations.html#photos;geo=2589810&detail=2589810&ff=260762389&albumViewMode=hero&aggregationId=101&albumid=101&baseMediaId=260762389&thumbnailMinWidth=50&cnt=30&offset=-1&filter=2&autoplay=

Xativa, the nearest large town is only 20 minutes away by car and again has a very historic past. Valencia and the airport is approximately 45 minutes, Alicante airport 1 hour 10 minutes and the Mediterranean coast is a 40-minute drive. Xativa has a main line railway station providing a cheap and reliable service to Valencia and surrounding towns.

All measurements are approximate and in meters.

Floorplans

Videos

Contact Seller

This property has now been sold.